MENU
















For sale ● Paris 18ème, Paris ● 598 000,00€ F.A.I.
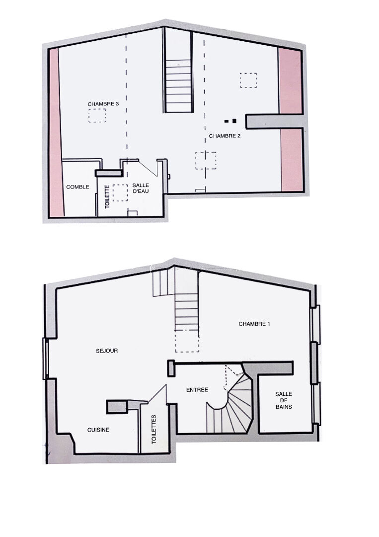
On the 2nd floor, this charming duplex has 70 m² of floor space (50 m² Carrez) and benefits from plenty of light thanks to its double North-South exposure.
The first level opens onto a welcoming entrance leading to a large double living room bathed in light, offering a lounge area and a convivial dining room. The semi-open kitchen, modern and functional, fits harmoniously into the whole. A separate toilet and a bathroom with window complete this level.
Upstairs, a beautiful bedroom/office space under the roof has its own bathroom with WC, offering comfort and independence.
The apartment seduces with its modular volumes, its tailor-made storage and its warm atmosphere.
A cellar as well as a bicycle space in the co-ownership complete this property.
Finally, its excellent DPE demonstrates excellent energy performance, a rare asset for a property of this type.
Co-ownership of 21 lots.
Annual charges: 1864 euros.
Pièce(s): 3
Surface : 65 m²
Salle de bain : 1
Meublé : Non
Etage : 2 ème
Etages du bâtiment : 3
Nombre d'étages du bien : 2
Charges annuelles : Non renseigné
Mode de chauffage : Individuel
Chauffage : Non renseigné
Atout : Cellar
Procédures en cours : Pas de procédure en cours
DPE : E

GES : B


With a strong expertise of the Ramey district, in constant transformation since a few years, our real estate experts welcome you for your real estate project to purchase or sale your apartment.
This property is presented by Immopolis. Find out more about our 5 real estate agencies in Paris.