MENU










For sale ● Paris 18ème, Paris ● 740 000,00€ F.A.I.
Located in the heart of the sought-after Lamarck Caulaincourt district, this apartment full of potential offers a rare opportunity to acquire a heritage quality property under particularly attractive financial conditions. Installed on the second floor of a beautiful Haussmann building, it immediately seduces with its generous volumes and all the charm of the old.
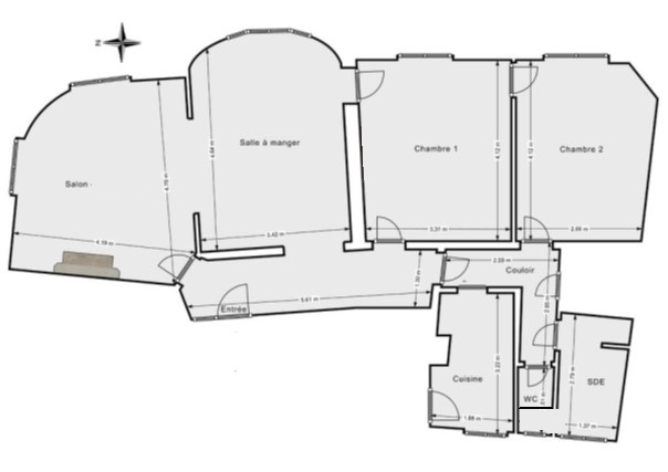
With a surface area of 87.48 m², this apartment consists of:
From an entrance
A bright double living room with two balconies
A fitted independent kitchen
Two beautiful bedrooms with balcony
Separate WC
A bathroom with bathtub and shower
You will particularly appreciate the ceiling height of 2.90 meters, the elegant moldings, as well as the Hungarian point parquet flooring which give this property an authentic and timeless character.
The property is offered for sale of bare ownership, the sellers reserving the usufruct of the accommodation allowing them to continue to occupy it throughout their lives. The purchaser thus becomes the bare owner upon acquisition, then will recover full ownership of the property upon extinction of the usufruct.
This type of asset investment has several advantages:
A discounted acquisition price compared to the free value
No rental management
No taxation on rental income during the usufruct period
A secure real estate investment in a highly sought-after area of Montmartre
The sellers are a couple whose average age is 79 years old. In accordance with the classic distribution between usufructuary and bare owner, the purchaser will be responsible for:
Property tax
Non-recoverable charges
The work voted for by the co-ownership
A rare opportunity for a quality heritage investment, in one of the most sought-after areas of the 18th arrondissement, combining security, long-term appreciation and old-world charm. (3.33% fees including tax payable by the purchaser.)
Pièce(s): 4
Surface : 87.48 m²
Salle de bain : 1
Meublé : Non
Etage : 2 ème
Etages du bâtiment : 6
Nombre d'étages du bien : 1
Mode de chauffage : Collectif
Chauffage : Radiateur
Atout : Cellar, Elevator
DPE : F

GES : F


In the heart of Abbesses district, our real estate experts welcome you and advise to you to buy or sell your apartment in the best conditions. Our agency on Ravignan street exists since 1989. Our goal is to share with you our knowledge of this particular district.
This property is presented by Immopolis. Find out more about our 5 real estate agencies in Paris.