MENU










For sale ● COURBEVOIE, Hauts-de-Seine ● 576 000,00€ F.A.I.
Located in a luxury residence from 2003, Immopolis offers you this family apartment from 2003.
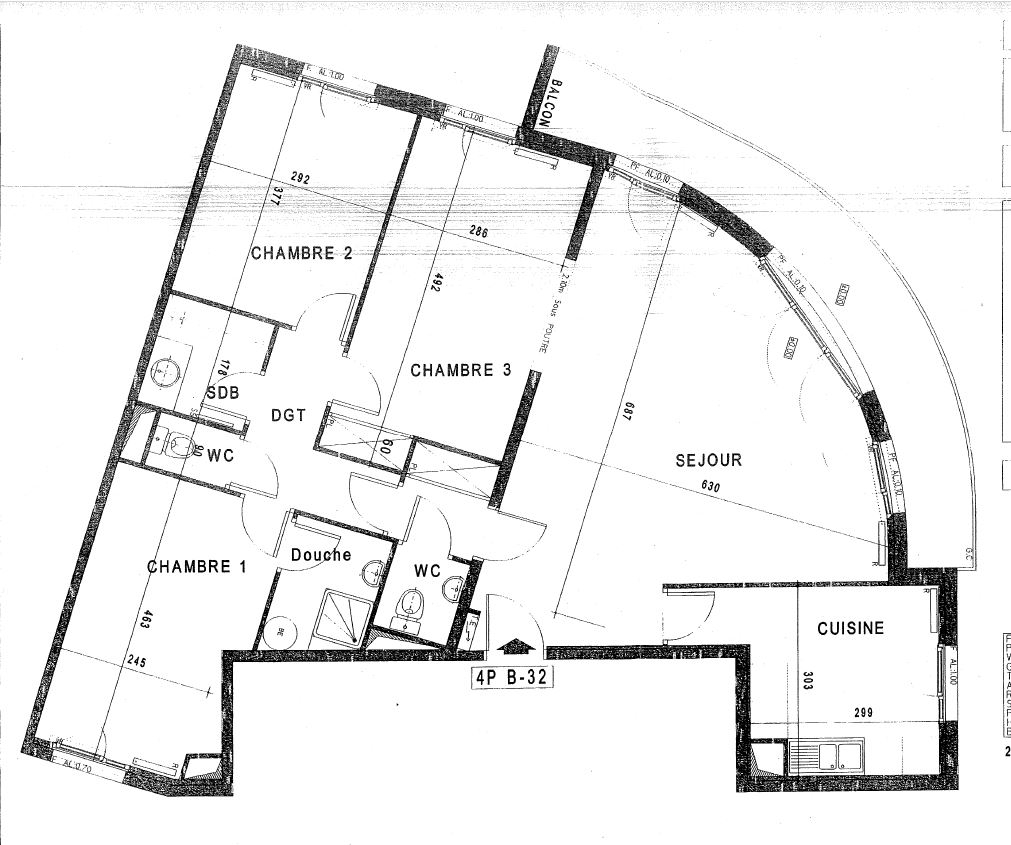
With a total surface area of 97m2 Carrez and three bedrooms, this apartment ideally located in Courbevoie (Faubourg de l'arche - La Défense district) will seduce you with its brightness, its west-facing balcony and its calm.
With an optimal plan without loss of space, the property located on the 3rd floor by elevator consists of: a large corner living room facing North/West of 32m2 with continuous balcony of 11m2, two large bedrooms facing West, a third bedroom overlooking an interior garden facing south, an independent kitchen, two separate toilets, a bathroom and a shower room.
Possibility of opening the kitchen onto the living room (42 m2 of living rooms!)
The property is sold with two parking spaces on the lower level by elevator and a cellar.
Bike room available
You will be seduced by this dynamic, sought-after area, and very well served by public transport (tram line T2, train line L Gare de Courbevoie, bus 73).
To visit quickly!
Co-ownership of 25 lots (No procedure in progress).
Annual charges: 2600 euros.
Pièce(s): 4
Surface : 97 m²
Salle de bain : 1
Meublé : Non
Etage : 3 ème
Etages du bâtiment : 7
Nombre d'étages du bien : 1
Mode de chauffage : Individuel electrique
Chauffage : Radiateur
Atout : Cellar, Elevator
DPE : C

GES : A


Our real estate experts welcome you for your real estate projects (purchase or sale of apartment). We are specialists of the Lamarck-Caulaincourt district and its neighborhood.
This property is presented by Immopolis. Find out more about our 5 real estate agencies in Paris.